トップページ > 物件検索 > 横浜市港北区 の貸事務所・貸店舗 > 綱島の貸事務所・貸店舗 > 横浜市港北区綱島西1-4-23 ソリスト綱島(ソリストツナシマ)
横浜市港北区綱島西1-4-23 ソリスト綱島(ソリストツナシマ) 詳細データ
お電話(03-6260-6573)です >> お問い合わせの際は物件番号 63998 をお知らせ下さい。
※不動産業者様へのご紹介は不可です。
※不動産業者様へのご紹介は不可です。
| 物件名 | ソリスト綱島(ソリストツナシマ) |
|---|---|
| 沿線/駅 | 東急東横線 綱島 |
| バス/徒歩 | バス:- / 徒歩:2 分 |
| 所在地 | 横浜市港北区綱島西1-4-23 |
| 所在階 | B1-1/5 階 |
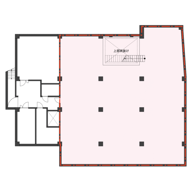
| 面積 | 156.45 坪 |
| 賃料(坪・円) | 坪 8,789 円 (総額 1,375,000 円) |
| 共益費 | |
| 礼金 | |
| 敷金 | |
| 保証金 | 12ヶ月 |
| 竣工年 | 1995 年 |
| 建物構造 | RC(鉄筋コンクリート) |
| 駐車設備 | - |
| 契約期間 | 5 年 |
| 入居可能日 | 相談 |
| 備考 | 飲食店不可スケルトン24時間利用可土日・祝日利用可天井高2.5m以上 条件交渉ご相談ください。 |
保証金は用途・与信状況等により変動の可能性があります。当初契約期間は5〜10年を想定しております。現状は機械式駐車場設備があります。図面記載の階段は現状はまだ設置されていません。契約締結後、関係者との打ち合わせの上工事開始を予定しており、スムーズに進んでも契約後6〜7ヶ月後の引き渡しとなります。
![]() |
|---|
テナント.bizでは、横浜市港北区綱島西1-4-23をはじめ、東京・神奈川・千葉・埼玉・横浜・川崎等、首都圏を中心に賃貸事務所・賃貸オフィス・貸店舗・レンタルオフィス・貸ビル・新築貸事務所の情報満載です。 横浜市港北区綱島西1-4-23のショールーム・営業所・リース店舗や物販の貸事務所・賃貸オフィスも簡単検索できます。 横浜市港北区綱島西1-4-23でSOHOの貸事務所から100坪以上の賃貸事務所・賃貸店舗まで、物件数No1のテナント.bizにお任せ下さい。 その他、横浜市港北区綱島西1-4-23に貸事務所・貸店舗・貸ビルを所有のオーナー様には物件登録システムで無料にて貸事務所・貸店舗・賃貸オフィスの広告を掲載致します。 貸事務所・貸店舗の移転手続き、オフィスのレイアウトから内装工事のサポートも万全です。 事務所、店舗の他、貸倉庫、貸工場もテナント.bizにお任せ下さい。 |
東京エリア
- 有楽町/
- 大崎/
- 五反田/
- 恵比寿/
- 代々木/
- 高田馬場/
- 池袋/
- 飯田橋/
- 御茶ノ水/
- 明大前/
- 池尻大橋/
- 用賀/
- 銀座一丁目/
- 東銀座/
- お台場海浜公園/
- 大門/
- 御成門/
- 六本木/
- 赤坂見附/
- 赤坂/
- 青山一丁目/
- 祖師ヶ谷大蔵/
- 下北沢/
- 四ツ谷/
- 市ヶ谷/
- 秋葉原/
- 神田/
- 代官山/
- 広尾/
- 神谷町/
- 麹町/
- 学芸大学/
- 自由が丘/
- 中目黒/
- 溜池山王/
- 芝公園/
- 赤羽橋/
- 三田/
- 九段下/
- 半蔵門/
- 外苑前/
- 表参道/
- 神保町/
- 高円寺/
- 阿佐ケ谷/
- 荻窪/
- 吉祥寺/
- 国分寺/
- 赤羽/
- 上野/
- 浅草/
- 錦糸町/
- 水道橋/
- 大井町/
- 大森/
- 蒲田/
- 南多摩/
神奈川エリア
- 川崎/
- 桜木町/
- みなとみらい/
- 関内/
- 石川町/
- 山手/
- 馬車道/
- 元町・中華街/
- 新横浜/
- たまプラーザ/
- あざみ野/
- 青葉台/
- 長津田/
- 洋光台/
- 港南台/
- 鴨居/
- 二俣川/
- 向ヶ丘遊園/
- 仲町台/
- 金沢文庫/
- 金沢八景/
- 中央林間/
- 相模大野/
- 湘南台/
- 辻堂/
- 綱島/
- 大倉山/
- 菊名/
- 日吉/
- 武蔵小杉/
- 溝の口/
- 上大岡/
- 横須賀中央/
- 本厚木/
- 橋本/
- 平沼橋/
- 西横浜/
- 天王町/
- 星川/
- 和田町/
- 上星川/
- 西谷/
- 鶴ヶ峰/
- 希望ヶ丘/
- 三ツ境/
- さがみ野/
- 二子新地/
- 高津/
- 梶ヶ谷/
- 宮崎台/
- 宮前平/
- 鷺沼/
- 江田/
- 市が尾/
- 藤が丘/
- 白楽/
- センター北/
- センター南/
- 北山田/
- 東戸塚/
- 阪東橋/
- 吉野町/
- 南林間/
- 武蔵中原/
- 武蔵新城/
- 鹿島田/
- 東山田/
- 弘明寺/
- 元住吉/
- 新子安/
- 小田急相模原/
- 三浦海岸/
- 能見台/
- 井土ヶ谷/
- 本郷台/
- 南太田/
- 港南中央/
- 片倉町/
- 淵野辺/
- 十日市場/
- 北久里浜/
- 緑園都市/
- 弥生台/
千葉エリア
- 新浦安/
- 舞浜/
- 西船橋/
- 本八幡/
- 下総中山/
- 津田沼/
- 南行徳/
- 幕張本郷/
- 蘇我/
- 新松戸/
- 東松戸/
- 東中山/
- 船橋法典/
- 市川大野/
- 成田空港/
- 上本郷/
- みのり台/
- 印西牧の原/
- 鬼越/
- 下総松崎/
- 物井/
- 姉ヶ崎/
- 長浦/
- 巌根/
- 運河/
- 松飛台/
- 馬込沢/
- 市川真間/
- 京成中山/
- 薬園台/
- 大佐倉/
- 志津/
- 南船橋/
- 海浜幕張/
- 江戸川台/
- 八日市場/
- 北松戸/
- 八千代台/
- 千城台/






